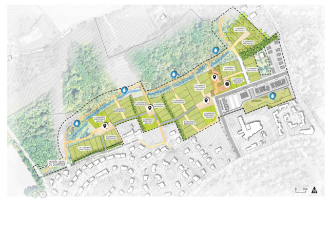
ZAC HALLE DE BROU
Yvré-l’Evêque (72)
MAITRE D’OUVRAGE
CENOVIA
EQUIPE
RESONANCE Urbanisme & Paysage – mandataire, TPF Ingénierie (BET VRD), ALTHIS (BE Environnement)
MISSION
Maîtrise d’oeuvre (de l’avp à l’aor) sur la phase 3 de la zac
AVANCEMENT
En cours
SURFACE
4 ha
MONTANT DES TRAVAUX
3 500 000 € HT
Ce projet d’aménagement présente cette double vocation d’extension qui tend à rééquilibrer l’enveloppe urbaine tout en participant à l’affirmation d’une centralité du coeur de bourg et visera dans sa composition urbaine à :
– Soigner l’intégration des aménagements dans le site,
– Favoriser la couture avec le tissu urbain existant, tout en gardant à l’esprit la nécessaire fonctionnalité de ce nouveau quartier et sa cohérence à une échelle élargie,
– Constituer un projet d’aménagement urbain à la fois respectueux du site et des principes du développement durable, s’adaptant aux caractéristiques du territoire dans lequel il s’inscrit.
L’objectif étant d’initier une lisibilité, une visibilité des parcours qui permettent une certaine convergence vers le coeur de bourg tout en participant au maillage de liaisons douces, vecteur de lien entre les commerces, services et équipements communaux.
