QUARTIER DE MONTBEAUME
Beaufort-en-Anjou (49)
MAITRE D’OUVRAGE
ALTER PUBLIC
EQUIPE
RESONANCE Urbanisme & Paysage – mandataire, TPF Ingénierie (BET VRD)
MISSION
Conception et maitrise d’oeuvre + volet concertation
AVANCEMENT
En cours
SURFACE
3.5 ha
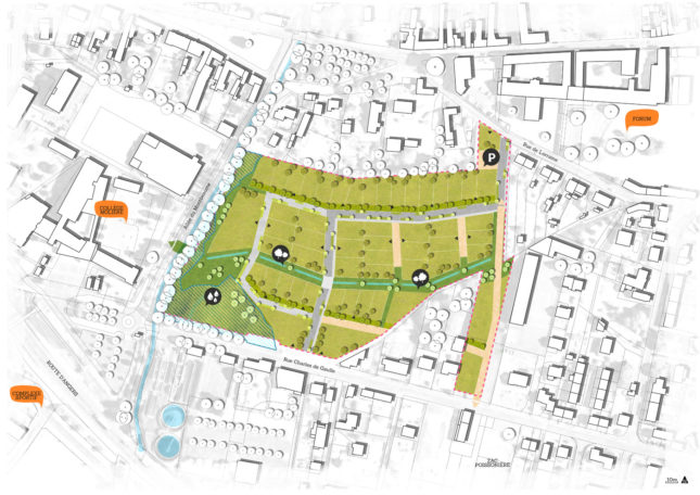
Le projet de création du Quartier Montbeaume offre l’opportunité de reconstruire la ville sur elle-même et de régénérer, au-delà de son périmètre strict, une qualité de cadre de vie en s’appuyant sur la qualité des lieux, l’attractivité et le dynamisme du bourg.
L’ancienne emprise industrielle de France Champignon offre à la ville un potentiel d’environ 3,5ha, en continuité du tissu urbain existant, principalement dédiés à la construction de logements. L’aménagement de ce nouveau quartier devra s’appuyer sur la proximité de pôles de vies, ainsi que sur les qualités même du site, afin de devenir un espace intégré et connecté à son environnement (topographie, perspectives, ruisseau du Couasnon…). Un travail de suture fine doit être réalisé pour redonner à ce secteur une cohérence d’ensemble. Une réelle perméabilité tant Nord-Sud qu’Est-Ouest doit être apportée et pensée à échelle élargie pour faire du quartier un lien naturel entre le coeur de bourg, les équipements présents, les quartiers habités actuels et futurs (site de la Poissonnière) et le secteur économique au Sud.


