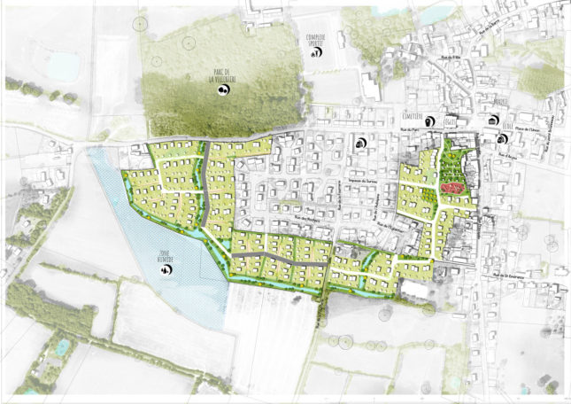
QUARTIER DE VILLETALOUR
La Pouëze (49)
MAITRE D’OUVRAGE
ALTER CITÉS
EQUIPE
RESONANCE Urbanisme & Paysage – mandataire, TPF Ingénierie (BET VRD)
MISSION
Etude de faisabilité, concertation, dossier de création de zac, maîtrise d’oeuvre des équipements et espaces publics
AVANCEMENT
En cours
SURFACE
10 ha
MONTANT DES TRAVAUX
2 457 000€ HT
La Pouëze, commune déléguée d’Erdre en Anjou, envisage aujourd’hui la construction de nouveaux logements sur deux secteurs :
le premier en renouvellement urbain et le second en extension urbaine avec la création du quartier Villetalour à l’Ouest du bourg. Cette opération s’inscrit dans une démarche globale visant à recomposer les espaces publics existants et futurs de manière à inscrire les nouveaux quartiers dans la trame du bourg et composer ainsi un ensemble cohérent offrant un cadre de vie de qualité.ressit labor.
Le piéton a été privilégié dans la composition de l’espace notamment sur les secteurs de coeur de quartier où des équipements (aires de jeux, bancs, parcs…) favorisent la rencontre des habitants à l’appui des zones de promenade inter-quartiers.








































