QUARTIER BELLE-BEILLE
Angers (49)
MAITRE D’OUVRAGE
ALTER PUBLIC
EQUIPE
RESONANCE Urbanisme & Paysage, ENET DOLOWY (urbaniste et architecte) – mandataire, TPFI (BET VRD), VIZEA (AMO Développement durable)
MISSION
Plan guide / Schéma directeur / CPAUP/ Cahier des limites de prescriptions techniques / Assistance à la concertation / Développement durable – Assistance à la labélisation / Mission de maîtrise d’oeuvre : Avant-projet
AVANCEMENT
En cours
SURFACE
97 ha
MONTANT DES TRAVAUX
200 000 000 € HT
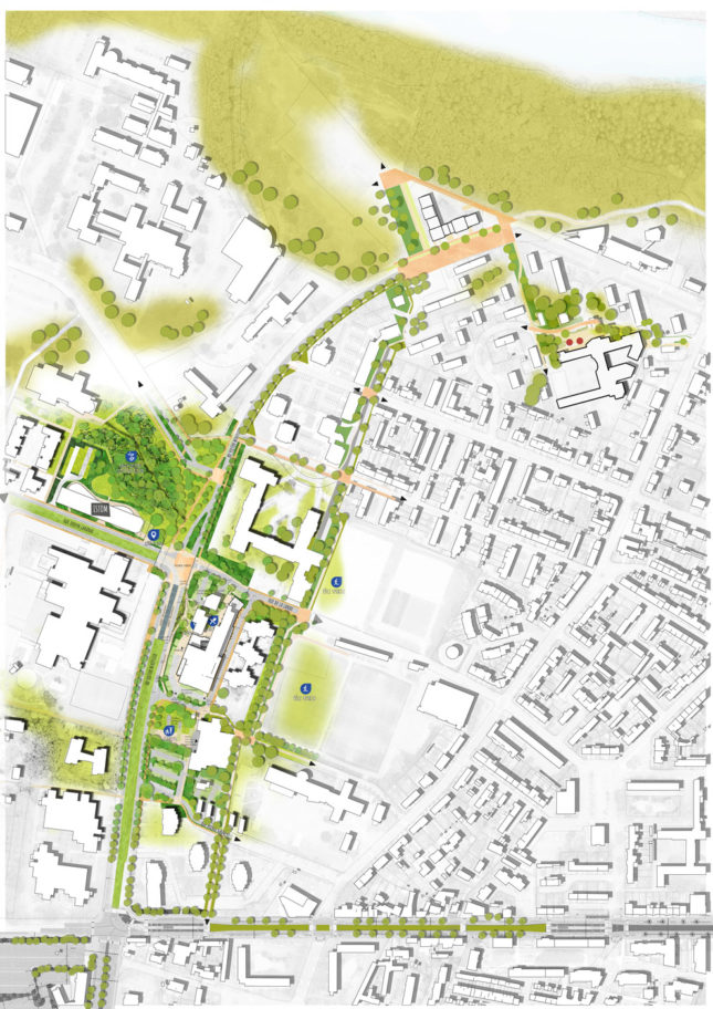
Dans le cadre du nouveau programme national de rénovation urbaine, Angers Loire Métropole a confié à la SPLA un nouveau mandat d’études sur le secteur du Grand Belle -Beille. Venant poursuivre les études préalables réalisées sur le quartier, le projet de quartier a pour objectif de préciser les interventions urbaines envisagées par le plan guide initial, prolongeant ainsi la politique d’aménagement, de rénovation de l’habitat et d’amélioration des équipements publics.
Ce projet s’appuie sur un diagnostic urbain et paysager détaillé définissant les points d’amélioration et potentialités du territoire sur lesquelles fonder les grandes orientations d’aménagement (proximité du centre-ville d’Angers, de grands parcs urbains dont l’étang Saint Nicolas, identité très boisée des franges du quartier, zone enclavée avec certains îlots vieillissants…). Les actions programmées viseront à offrir une nouvelle image à ce quartier pour en favoriser l’attractivité et le dynamisme. La création d’une trame verte fédératrice permettra de redonner une lecture claire de la trame urbaine, de la mettre en lien avec le paysage environnant tout mettant en réseau les espaces de proximité et d’animation du quartier, développant ainsi la vie sociale de chaque lieu…











