ILOT PRÉ BLEU RIVE GAUCHE
Angers (49)
MAITRE D’OUVRAGE
Abraham / SOCLOVA
EQUIPE
RESONANCE Urbanisme & Paysage, DCL (Architectes)
MISSION
Conception et Maîtrise d’oeuvre
AVANCEMENT
En cours
SURFACE
2 300m²
MONTANT DES TRAVAUX
340 000€ HT
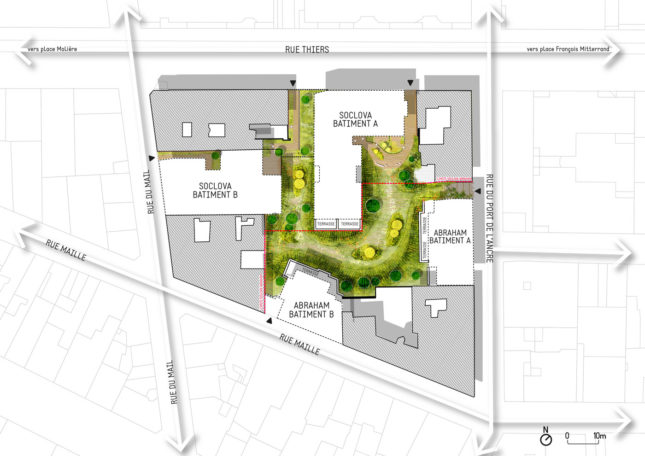
Aux abors du site, la disposition du bâti créé des «fenêtres» proposant différents cadrages sur le coeur d’îlot. Perceptibles depuis la rue,elles se propagent comme des ondes,hors les murs,attirant notre regard. En approchant, peu à peu, un îlot verdoyant s’offre à nous,véritable espace de respiration, au coeur d’un tissu urbain pourtant bien dense. La composition de ce jardin s’articule autour de subtils mouvements de sols. Ces oscillations génèrent de micros reliefs (creux et buttes) sur lesquels se dresse une végétation particulière apportant au jardin de multiples variations (couleurs, ports, textures, floraisons…) tout en répondant à des contraintes plus techniques (jardin sur dalle).
L’association du relief et de la végétation esquisse également des filtres visuels gérant les co-visibiltés entre les différents éléments bâtis répondant ainsi aux questions d’intimisations des espaces privés.
Le piéton a été privilégié dans la composition de l’espace notamment sur les secteurs de coeur de quartier où des équipements (aires de jeux, bancs, parcs…) favorisent la rencontre des habitants à l’appui des zones de promenade inter-quartiers.































