QUAI BARBUSSE
QUAI BARBUSSE Nantes (44) MAITRE D’OUVRAGE JMP EXPENSION / CIF promotion EQUIPE RESONANCE Urbanisme & Paysage, The Architectes, Jacques BOUCHETON Architectes MISSION Étude et conception AVANCEMENT En cours SURFACE 2 700 m² L’îlot donnera sur les quais de l’Erdre et aura égalemetn une venelle intimiste mettant en scène le fond végétal. En limite Est, on…
L’ANGLAISERIE
L’ANGLAISERIE Verrières-en-Anjou (49) MAITRE D’OUVRAGE ALTER CITÉS EQUIPE RESONANCE Urbanisme & Paysage, GO-A (Architecte) MISSION Diagnostic, Scénarii, Schéma d’aménagement AVANCEMENT En cours SURFACE 3 ha Situé sur la commune de Verrières-en-Anjou, le site de l’Anglaiserie est une enclave verte aux portes du coeur de bourg. Elle se situe à proximité des grands projets de développement…
GESTION DIFFÉRENCIÉE
GESTION DIFFÉRENCIÉE Verrières-en-Anjou (49) MAITRE D’OUVRAGE Commune de Verrières-en-Anjou / ALTER EQUIPE RESONANCE Urbanisme & Paysage MISSION Mise en place d’un plan de gestion différencié des espaces verts AVANCEMENT En cours SURFACE 25 Km² L’élaboration de ce plan de gestion à commencer par un inventaire complet des espaces verts de la commune. Les typologies des…
GESTION DES EAUX PLUVIALES
GESTION DES EAUX PLUVIALES ZAC DES HAUTS DE LOIRE / Les-Ponts-de-Cé (49) MAITRE D’OUVRAGE ALTER PUBLIC EQUIPE RESONANCE Urbanisme & Paysage, SAFEGE (BE hydraulique) MISSION Étude de faisabilité technique de gestion des eaux pluviales AVANCEMENT En cours SURFACE 6 ha MONTANT DES TRAVAUX 155 000€ HT pour les jardins et espaces partagés Le bassin des…
ZAC DE VERNEAU
ZAC DE VERNEAU Angers (49) MAITRE D’OUVRAGE Angers Loire Habitat (ALH) EQUIPE RESONANCE Urbanisme & Paysage, RDB Architectes (mandataire), CHeD Architecte, Techniques et Chantier (BE Economie), EVEN Structures (BE Structure), Gélineau (BE Thermique et Fluides), Neau (BE Electricité), Db Acoustic ( BE Acoutisque) MISSION Maîtrise d’oeuvre complète AVANCEMENT 2014, projet réalisé MONTANT DES TRAVAUX 70…
LES PRAIRIES DE LA MAYENNE
LES PRAIRIES DE LA MAYENNE Cantenay-Épinard (49) Lauréat du concours national Mention spéciale des entrées de ville et reconcoquête des franges urbaines Déc. 2018 Lauréat du Prix départemental de l’aménagement 2017 MAITRE D’OUVRAGE ALTER EQUIPE RESONANCE (Urbanisme & Paysage), – mandataire, ALTHIS (be Ingéniérie) MISSION Maîtrise d’oeuvre complète dossier natura 2000 AVANCEMENT 2016, projet réalisé…
ZAC DE LA JOLIVETTERIE
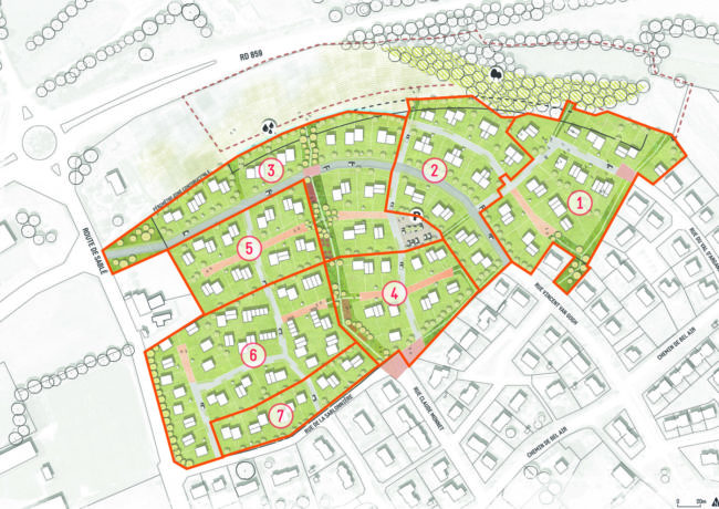
ZAC LES ONGROIS Écouflant (49) MAITRE D’OUVRAGE ALTER CITÉS EQUIPE RESONANCE Urbanisme & Paysage, FORMA6 (ARCHITECTES), Cabinet Branchereau (VRD) MISSION Aménagements paysagers AVANCEMENT Phase APD SURFACE 10 ha (250 logements) MONTANT DES TRAVAUX 500 000€ HT Le paysage du secteur de la Jolivetterie combine à la fois des ambiances urbaines, horticoles et d’activités économiques. Parmi…
ZAC DES ÉCOTIÈRES
ZAC DES ÉCOTIÈRES Villevêque (49) MAITRE D’OUVRAGE ALTER CITÉS EQUIPE RESONANCE Urbanisme & Paysage – mandataire, Atelier DULIEU (Architecte), Thema Environnement (Be Environnement), Chauveau- Roussel (Géomètre VRD) MISSION Dossier de création et de réalisation de la ZAC, maîtrise d’oeuvre des aménagements paysagers, accompagnement des visas de PC AVANCEMENT DET en cours SURFACE 7.1 Ha, 90…
VALORISATION DE LA RESTAURATION DU LITTORAL
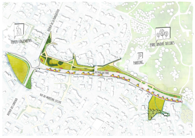
VALORISATION DE LA RESTAURATION DU LITTORAL Loire-Atlantique (44) / Vendée (85) MAITRE D’OUVRAGE D.R.E.A.L Pays de la Loire EQUIPE RESONANCE Urbanisme & Paysage – mandataire, LE BIHAN Ingénierie (BE Ingénierie Environnement Ecologie), EMANENCE (Sociologie) MISSION Valorisation du programme de restauration DÉMARRAGE 2011 AVANCEMENT Etude terminée en 2012 Sur la commune d’Ecouflant, tourné vers le bourg…
ZAC LE CHÊNE VERT / LES JARDINS FAMILIAUX
ZAC LE CHÊNE VERT / LES JARDINS FAMILIAUX SAINT SYLVAIN D’ANJOU / Verrière-en-Anjou (49) MAITRE D’OUVRAGE ALTER PUBLIC EQUIPE RESONANCE Urbanisme & Paysage MISSION Maîtrise d’oeuvre complète AVANCEMENT 2017, projet réalisé SURFACE 5 000 M² MONTANT DES TRAVAUX 170 600 € HT Les jardins familiaux se positionnent à l’articulation entre la Tranche 1 et la…
ZAC LES ONGROIS
ZAC LES ONGROIS Écouflant (49) MAITRE D’OUVRAGE ALTER CITÉS EQUIPE RESONANCE Urbanisme & Paysage MISSION Maîtrise d’oeuvre complète (aménagements paysagers et clôtures) AVANCEMENT En cours SURFACE 4,5 ha MONTANT DES TRAVAUX 75 500€ HT (Clôtures), 420 255€ HT (Paysage) Sur la commune d’Ecouflant, tourné vers le bourg et le vallon de la Veillère, les partis…
ABORDS DU BÂTIMENT IBP
ABORDS DU BÂTIMENT IBP Saint-Herblain (44) MAITRE D’OUVRAGE OCDL Groupe Giboire EQUIPE RESONANCE Urbanisme & Paysage MISSION Maîtrise d’oeuvre complète AVANCEMENT Projet réalisé en 2011 SURFACE 0.66 ha MONTANT DES TRAVAUX 378 000 € HT Aménagements des espaces extérieurs d’un bâtiment à vocation d’activités et de bureaux en vitrine de la Zac Ar Mor à…




























































































































































