LOTISSEMENT LES VIGNES III
Cantenay-Épinard (49)
MAITRE D’OUVRAGE
Commune de Cantenay-Epinard
EQUIPE
RESONANCE Urbanisme & Paysage – mandataire, Pragma Ingénierie (BE VRD)
MISSION
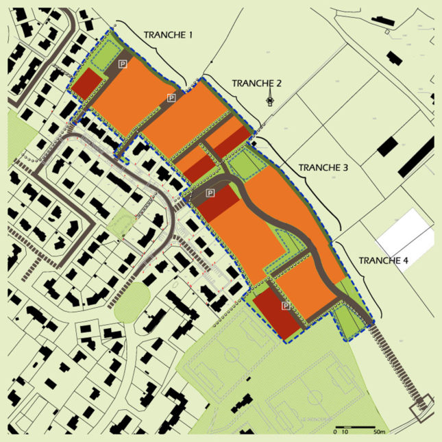
Extension de la zone d’habitat dans le secteur les Vignes
AVANCEMENT
Projet réalisé en 2014
SURFACE
5.2 ha
MONTANT DES TRAVAUX
160 000€ HT
Le lotissement des Vignes s’inscrit dans un cadre naturel très valorisant, fait de vues sur le château en Vaux et les Basses Vallées Angevines. Le caractère bocager initial est restauré sur l’ensemble de l’opération par une réflexion pensée sur les plantations sur domaine privé (pré-plantations) et public (préservation des arbres remarquables et des haies existantes). Les espaces publics seront aménagés avec un soin particulier, qui garantit la qualité de vie des futurs habitants et leur bonne intégration vs-à-vis des riverains.
L’intimité de chacun est en particulier prise en compte en évitant toute co-visibilité directe,variations des implantations des constructions, traitement des limites séparatives, espaces publics de transition). Le suivi des permis de construire assoit la cohérence du futur quartier.
Le piéton a été privilégié dans la composition de l’espace notamment sur les secteurs de coeur de quartier où des équipements (aires de jeux, bancs, parcs…) favorisent la rencontre des habitants à l’appui des zones de promenade inter-quartiers.





























