ZAC DU VAL D’ARGANCE
Durtal (49)
MAITRE D’OUVRAGE
ALTER CITES / Commune de Durtal
EQUIPE
RESONANCE Urbanisme & Paysage, Didier BUNEL (géomètre)
MISSION
Maîtrise d’oeuvre complète
AVANCEMENT
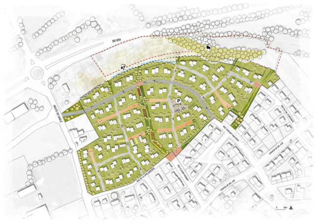
Tranches 1, 2 et 3 en 2017, Esquisse et scenarii des Tranches 4, 5 et 6 en 2018
SURFACE
8.2 ha (143 logements)
L’esquisse du projet de cet aménagement urbain s’articule autour des partis pris suivants:
– Affiner le périmètre opérationnel.
– Proposer un phasage cohérent (tant du point de vue de la composition urbaine que de la faisabilité technique).
– Définir les ratios d’espaces publics / cessibles.
– Estimer le nombre de logements projetés et les densités associées.
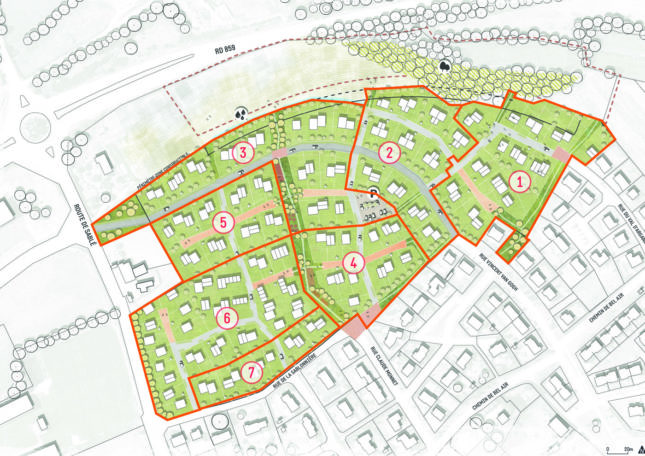
Cet aménagement se décompose en 7 tranches, avec un aménagement viaire accompagné d’une structure verte et de liaisons douces. Une desserte en assainissement est également comprise dans l’esquisse. Projet d’aménagement
toutes phases comprises :
– Périmètre constructible 8,2 hectares 100%
– Espaces cessibles 6,4 ha 78%
– Voiries (dont aire de stationnement) 1,1 ha 13%
– Espaces paysagers 0,7 ha 9%
– Logements 143 unités pour 158 à 173 requises (densité de 20 à 22 lgts/ha)
– Surface moyenne des parcelles 450m²
Le piéton a été privilégié dans la composition de l’espace notamment sur les secteurs de coeur de quartier où des équipements (aires de jeux, bancs, parcs…) favorisent la rencontre des habitants à l’appui des zones de promenade inter-quartiers.


